The Shooting Range

Queensville Firearms Range
Location, Rules, Procedures, Availability and Booking

Location Shooting Range
Civic Address of Range: 2558 Highway 105
Location Description: 24.1 km from Port Hawkesbury off Highway 105
Lat / Long Coordinates: N 45° 44' 32.8" W 061° 20' 43.8"
UTM Coordinates: 20T E 628704 N 5066763
Office NS DNR Whycocomagh
Phone #: 902-756-2339
County: Inverness, Nova Scotia, Canada
For Availability and Booking of the Shooting Range, please scroll down on this page.

Location of Firearms Range on Google Maps
The exact location of the Queensville Firearms Range on Google Maps can be found here:

The Shooting Range
The premisses of the Queensville Firearms Range is owned by the Nova Scotia Department of Lands and Forestry.
The buildings are financed and build the volunteers of our sport shooting Club Cape Nova.
Queensville Range access road not ploughed during winter months!
Handgun Range
In May 2015 we opened our brand-new Handgun Range at the Queensville Shooting Range.
On our handgan range you are permitted to use: centrefire and rimfire handguns and rimfire guns.
No other guns are allowed at the Handgun Range.
100 m Firearms Range
Look at our new 100 m firearm building! It was completed in early spring 2020.
Ok, we hired a local contractor. But we, the members of the Cape Nova club, paid for it in full and still put a lot of volunteer hours in to it.
Here at our photo gallery you can see our volunteers demolishing the old firearms building.
Attention: calibre .50 or higher and explosive targets are not permitted!

Procedures on the Firearms Range
We expect every new member to study our little orientation booklet.
If you should need help or assistance with your first times on the gun range, or if you just need to refresh your memories or for any question you may have, you are welcome to contact us any time.
Of course, it is absolutely mandatory to fully understand and to comply with all associated laws and regulations.
We do not tolerate any form of unsafe handling of firearms.
Instruction of the range officer have to be followed at all times.
We expect every new member to study our little orientation booklet.
Cape Nova Rifle and Revolver Club Operating Instructions
06 Sept 2023 rev 5 Attention: large file - 2 MB
You can download the Cape Nova Firearms Range Orientation Booklet here.

Attention Sport Shooters:
Please always remember: we are guests at this shooting range!
The owners of this range is the Department of Natural Resources Nova Scotia.
We expect all members and guest to follow these range rules.
Attention:
- The small portable gong is for use with .22 calibre firearms only. Using it with larger calibre will damage it.
- Magnum Rifles are not permitted, nor is a .50 calibre or any xplosive target.
- Skeet shooting is now permitted!

Safety Tips
Please see this document for a listing of what calibre of rifle is permitted to be used at the Queensville Range.
You will note on the 1st page, 1st section, that magnum rifles are not permitted, nor is a .50 calibre or any xplosive target.
Do not walk into the range building and please do not disturb the club shoots.
Under no circumstances move behind the buildings and never behind the firing line!
If the red flag at the main building and the red marker at the entrance are raised, the range is hot.
Special caution is advised.
Do not walk into an occupied firing line building without making your presence known and receiving permission from the occupier or a range officer if one is present.
During club shoots, firearms are only handled under the direction of range officers.
Safety is the top priority.
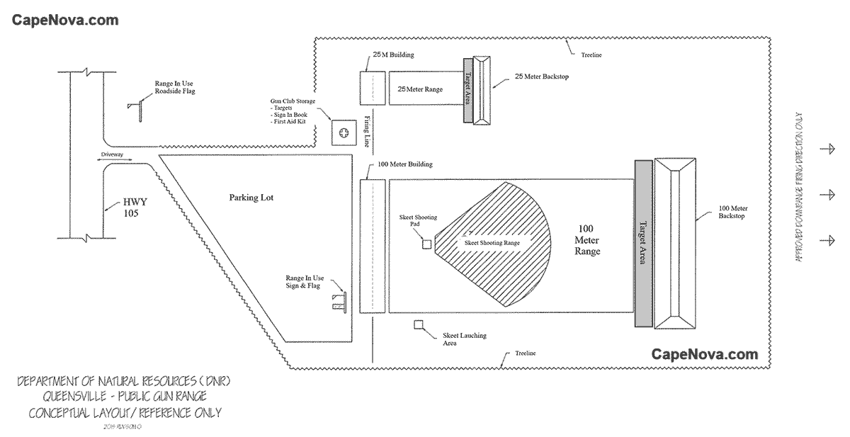
Queensville Shooting Range Layout

Firearms Range Rules and Code of Conduct
1 Open the 'Range in Use' sign at entrance before using the range.
2 Raise the red warning flags to show the range is active.
3 Stay well behind the front or side of the firing line when firing is taking place.
4 Keep the action of your firearm open, except when in use on the range.
5 Keep firearm muzzle pointed down range towards target at all times.
6 Keep all ammunition under control.
7 Place targets off the range floor as near the backstop as possible.
8 Place targets before you approach the firing points with a firearm.
9 Use paper, cardboard, or soft plastic targets only.
10 Explosive targets are prohibited.
11 Load firearm only when all has been made ready for firing to commence.
12 Load only one cartridge at a time into the firearm.
13 Confirm that others are safely behind the firing line before you aim.
14 Before moving to the target or from the firing line:
- unload and render the firearm safe;
- leave the breach open and firearm down, and
- BE SURE it is safe to proceed!
15 Clean range of all debris before leaving. Ensure all expended cartridge are collected.
16 If you are the last to leave, lower the red warning flags and close the range in use sign.
17 You must book range time through the Department of Natural Resources.
18 Unauthorized use of the range is not permitted. Book online or through your local DNR Office.
19 You must be 18 or over to book range time.
20 Anyone 17 or younger must be under the immediate supervision of a responsible adult.
21 You must follow the range officer's instructions, if one is present.
22 You must wear eye and hearing protection at all times while using the range.
23 You must follow the range safety procedures.
24 You must clean up after yourself - pick up all debris and expended cartridges.
25 Gun clubs must obtain a Shooting Range Group Permit from DNR to use department ranges.
26 You must NOT be under the influence of or in possession of alcohol or drugs while on range property.
27 You must NOT use unsafe or hazardous arms or ammunition.
28 Tracer, armour piercing, and explosive bullet types are prohibited.
29 You must NOT use metal, glass, or other unsafe targets. Explosive targets are prohibited.
30 You must NOT load or point your firearm behind the firing line.
31 You must NOT dry fire your weapon.
32 You must NOT talk to or distract a shooter, unless you are a coach or range officer.
33 Park vehicles in the designated parking area at a safe distance to the rear of the firing line.
34 Use this range at your own risk.
35 In case of EMERGENCY call 911.
Have Fun!
Please always remember: we are guests at this shooting range!
The owner of this range is the Department of Natural Resources Nova Scotia.
We expect all members and guests to follow the range rules.
Firearms Shooting Range Booking
New Firearms Range Booking System
Since spring 2025, a new online booking system service has been launched.
Accessing the old DNR Public Range Booking Website should result in automatic redirection to the new website.
If not, you can access the new firearms range booking site here:
Huntns.ca
Now, you should see something like:
"Welcome to Hunt NS"
"This is a secure system that requires you to first login using My NS Account. If this is your first time using My NS Account, you will need to create an account to login.
Once you login, you will be redirected back to Hunt NS...."
If this is your first time using the Hunt NS website there are a few extra steps.
You will need to create a My NS Account first.
After that there are various ways to get connected to Hunt NS depending on if you have a Wildlife Resources Card and know your PIN, or not.
These steps are only necessary once.
After that you will be taken directly to Hunt NS after login.

Just in case, booking the firearms range does not work as planned, you can call for help here:
Login Support Desk:
Contact Us Our support team is available to help with any questions you have about your account.
Hours of operation are Monday to Friday, 8:00am to 8:00pm AT
For more information about your account, visit the About page.
Telephone (North America): 1-844-322-9375
Good Luck!

